Ett hus som ger dig friheten att bo på dina villkor
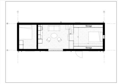
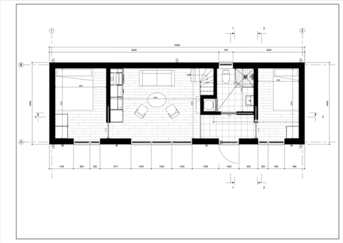
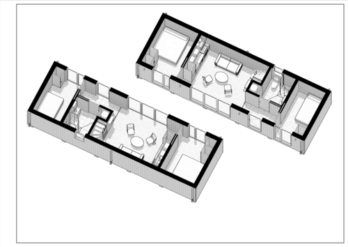
Stjärnvik 50 är modulhuset för dig som prioriterar funktion, kvalitet och ett tidlöst uttryck. På 50 kvadratmeter byggnadsyta och 40 kvadratmeter boarea får du ett komplett boende med loft - utan att behöva kompromissa med materialen eller vänta år på att flytta in.




Öppen känsla med smarta lösningar
Innerskjutdörrarna i Stjärnvik 50 är en detalj som gör stor skillnad i vardagen. De sparar yta, håller planlösningen öppen och ger huset ett modernt, rent uttryck som fungerar både i ett fritidshus i skogen och som permanent bostad på en villatomt.
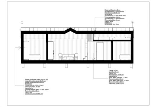
Fasaden kläs med vertikal furpanel i valfri färg, målad i två lager. Inomhus möter du vitmålade träpaneler, laminatgolv i klass 32 och LED-spotlights – ett sammanhållet uttryck från hall till loft.






Stjärnvik 50 levereras till Stockholm och Halmstad inom 24 veckor
Stjärnvik 50 är ett modernt Attefallshus med loft som ger extra rymd och flexibla användningsmöjligheter. Den smarta planlösningen gör att huset fungerar lika bra som permanent bostad som gästhus. Vi levererar Stjärnvik 50 till Stockholm och Halmstad med en tydlig leveranstid på upp till 24 veckor. Det ger dig möjlighet att planera hela projektet i lugn och ro innan huset levereras till tomten.
Isolering som håller hela året
Stjärnvik 50 isoleras med 250 mm PAROC stenull i väggar, golv och tak – samma nivå rakt igenom klimatskalet. Det ger ett U-värde på 0,15–0,16 W/m²K och ett inomhusklimat som håller sig stabilt oavsett årstid. Uppvärmningen sköts av Adax Neo Wi-Fi-radiatorer som du enkelt styr från mobilen.
Stommen är byggd med C24-träkonstruktioner och CE-certifierade material, godkänd av certifierad konstruktionsingenjör för varje modul.



Kök och badrum i toppklass
Köket levereras komplett med ugn, fullhöjd kyl/frys, fyra-plats induktionsspis och diskmaskin - allt från Electrolux. Matt vita luckor, svart Egger-bänkskiva och Grohe-blandare. Mjukstängande gångjärn och kullagerskenor med full utdragning. Ett kök som håller länge och ser bra ut hela tiden.
Badrummet är helkakat med klinker i valfri färg, Grohe Grotherm 800-duschblandare, Ifö Sign-toalett och elektrisk golvvärme från Devi. Ventilation via Fresh Intellivent 2.0 och varmvatten från Ariston Velis Pro ingår.












Garanti och leverans
Väggar, golv och tak täcks av 10 års garanti på modulkonstruktionen. Övriga material av 2 år. Leverans sker inom 24 veckor från första betalning till Stockholmsområdet.
