070-275 47 02
Logotyp
  • Om oss
  • Inspiration
  • Recensioner
  • Våra husmodeller
  • Prislista
  • FAQ
  • Få offert

Modulhus Solglänta 30

40 kvadratmeter byggnadsyta. 32 kvadratmeter boarea. Och ett loft som gör att det känns betydligt rymligare än måtten antyder. Solglänta 30 är JH Attefallshus eget modulhus - fabrikstillverkat, kvalitetscertifierat och levererat till din tomt i Stockholmsregionen.

Modulhus/attefallshus Solglänta 30

Solglänta 30 - Modulhuset med loft från JH Attefallshus

JH Attefallshus monterar Villa Solglänta nyckelfärdigt i Stockholmsregionen men också i Halmstad och Hallands län. Som erfaren totalentreprenör tar vi hand om allt från markförberedelser och bygganmälan till att du kan hänga upp nycklarna.

Solglänta 30
Solglänta 30
Solglänta 30
Solglänta 30

Byggd för att hålla - inte bara se bra ut

Det är lätt att bli förälskad i ett hus på bild. Det svårare konststycket är att leverera samma känsla när man kliver in på riktigt - och det är där materialen spelar huvudrollen.

Solglänta 30 byggs med C24-träkonstruktioner och CE-certifierade byggmaterial genom hela stommen. Ytterväggarna isoleras med 150 mm PAROC stenull, golvet med 200 mm och taket med hela 250 mm, vilket ger ett U-värde på 0,15–0,16 W/m²K. 

Det är nivåer som håller värmen inne på vintern och kylan inne på sommaren – utan att elräkningen spränger budgeten.

Fasaden kläs med vertikal furpanel som målas i två lager i valfri färg. Välj det som passar tomten, grannskapet och din smak.

Solglänta 30
Solglänta 30

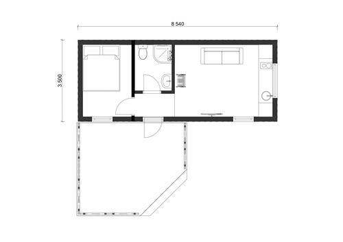
Planlösning med loft - mer yta än du tror

Bottenvåningen rymmer kök, vardagsrum, badrum och sovrum. Loftet ovanpå är det naturliga sovstället för barn, gäster – eller dig själv om du föredrar att sova under taknocken med utsikt.

Inomhus möts du av vitmålade träpaneler, laminatgolv i klass 32 och ett genomtänkt badrum med klinker, Grohe-blandare, Ifö Sign-toalett och elektrisk golvvärme från Devi. 

Det är produktval som håller länge och som du känner igen från välbyggda permanentbostäder - inte fritidshussegmentet.

Köket levereras med matt vita luckor, svart bänkskiva, induktionsspis och kyl från Electrolux samt diskho med Grohe-blandare. Allt är inkluderat i priset, utan dolda tillägg.

Solglänta 30
Solglänta 30
Solglänta 30
Solglänta 30

Solglänta 30 levereras snabbt till Stockholm och Halmstad

Solglänta 30 är ett kompakt och välplanerat Attefallshus som passar perfekt för både gästboende, fritidshus eller en extra bostad på tomten. Vi erbjuder leverans av modellen direkt till Stockholm och Halmstad med en tydlig och planerad byggprocess. 

Från beställning till färdig leverans tar det normalt upp till 24 veckor, vilket gör att du snabbt kan komma igång med ditt projekt. Genom en effektiv produktion och planerad transport kan Solglänta 30 levereras smidigt till både Stockholm och Halmstad med hög kvalitet från start.

El, VVS och dokumentation - allt ingår

Elinstallationen följer svensk standard med kablar förlagda i väggar och tak, centralt elskåp och smarta Adax Neo Wi-Fi-radiatorer. 

Badrumsventilationen sköts av Fresh Intellivent 2.0 och varmvatten levereras av en Ariston Velis Pro varmvattenberedare.

All teknisk dokumentation, VVS- och elritningar framtagna av certifierade specialister, samt godkännande av certifierad konstruktionsingenjör för varje modulkonstruktion ingår. Du får ett komplett underlag - inget du behöver jaga själv.

Leverans och garanti

Solglänta 30 levereras till Stockholmsområdet eller Halmstad/Hallandsregionen inom 24 veckor från första betalning. Modulkonstruktionen omfattas av 10 års garanti på väggar, golv och tak. Övriga material täcks av 2 års garanti. Betalningen delas upp i fyra steg: 35 % vid beställning, 30 % vid produktionsstart, 30 % när huset är klart i fabrik och 5 % vid godkänd leverans.

Räkna på Modulhus Solglänta 30 nedan:

Solglänta 30
Totalt
0 kr
0 valda


Se våra andra Attefallsmodeller:

Modulhus Månviken 40

Modulhus Månviken 40

Läs vidare här
Modulhus Vindhagen 50

Modulhus Vindhagen 50

Läs vidare här
Modulhus Stjärnvik 50

Modulhus Stjärnvik 50

Läs vidare här
Modulhus Fjordhem 76

Modulhus Fjordhem 76

Läs vidare här
Modulhus Solmark 120

Modulhus Solmark 120

Läs vidare här

Vill du komma i kontakt med oss?

Vi på JH Attefallshus svarar snabbt alla vardagar.

Telefonnummer

070-275 47 02

E-postadress

joel.hannerz@jhbyggmastare.com

Vill du ha en offert?

Skicka förfrågan
Logotyp till JH Attefallshus

Jh Attefallshus är ett byggföretag med fokus på attefallshus, husbyggnationer, tillbyggnader och ombyggnationer i Stockholms län och Halmstad. Vår målsättning är att genomföra byggprojekt med tydlig struktur, professionell kommunikation och ett resultat som håller över tid. Bakom verksamheten finns över 20 års erfarenhet inom bygg samt utbildning som byggnadsingenjör inom ROT. Det gör att vi kan ta ett helhetsansvar för projektet och ge tydlig rådgivning genom hela processen. 

Meny

  • Hem
  • FAQ
  • Kontakt
  • Inspiration
  • Recensioner
  • Våra modulhus
  • Våra Attefallshus
  • Om vårt företag
  • Få kostnadsfri offert

Kollektioner

  • Attefallshus
  • Våra tjänster
© 2026 Copyright JH Attefallshus · Villkor · Sajtkarta · Smartproduktion

Genom att använda denna webbplats
godkänner du vår cookiepolicy.